Errichtung eines Kita-Außenbereiches
für die evangelische Familienbildung Hohenzollernstraße Düsseldorf
Beschreibung
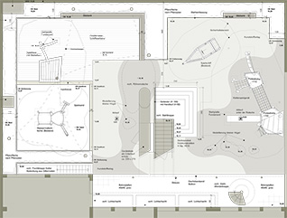
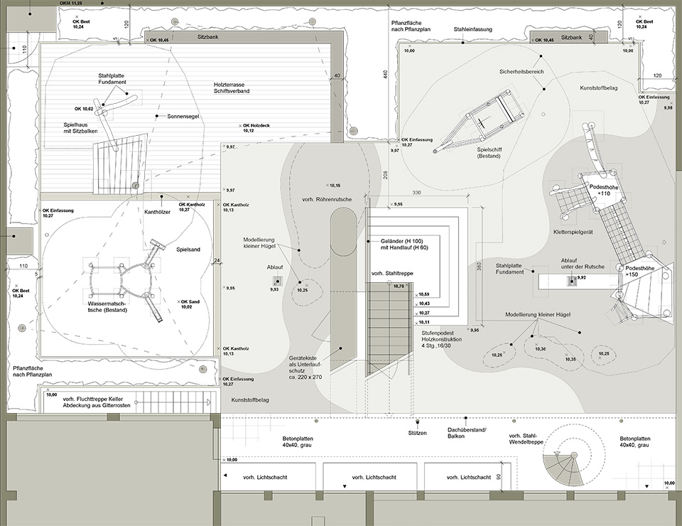
Für die zwei Gruppen der Kindertagesstätte im 1. Obergeschoss des Gebäudes der efa in der Düsseldorfer Innenstadt wurde der Außenspielbereich komplett erneuert. Die besondere Aufgabe lag darin über eine seit Jahren sanierungsbedürftige Garagendecke eine ansprechende und abwechslungsreiche Aufenthaltsfläche für Kinder zu schaffen. Durch die Kombination von Spielgeräten aus unregelmäßig gewachsenem Robinienholz mit einer Geländemodulation durch moderne leichte Oberflächen wurde ein Spielwert geschaffen, welcher den Kindern die fehlende natürliche Topografie ersetzen soll. Komplettiert wurde der gesamte Außenbereich durch raumbildende Hochbeete mit unterschiedlichen Pflanzbereichen. Gleichzeitig gewährleistet der neu geschaffene Bodenbelag eine dauerhafte Kontrolle der Drainage des Regenwassers, um langfristig einer erneuten Beschädigung der Garagendecke vorzubeugen.
Somit ist man gleichzeitig den bautechnischen wie pädagogischen Anforderungen gerecht geworden. Dieses Projekt ist entstanden in Kooperation mit den Landschaftsarchitekten Jägersküpper - Fahl.
Bauherr
Evangelische Familienbildung Düsseldorf
Gefördert durch die Stadt Düsseldorf
Bauzeit
04.–09.2019
Baukosten
ca. 400.000,– €











