
Kita Villa Kunterbunt, Essen
Beschreibung
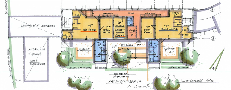
Der Betreiber der SKF Essen wünschte einen zeitgemäßen Umbau der im Untergeschoss befindlichen Kita-Gruppen für die Betreuung für Kinder unter drei Jahren. Die beiden Gruppen erhalten neue WC-Kuben mit Wickelbereich. Diese bilden in Verbindung mit Rasenkaskaden in treppenform absengte Spielhöfe mit Spielangeboten für Kleinkinder. Die Erschließung der Nutzungen im darüber liegenden Geschoss erfolgt über die jeweilige Dachfläche der vorgelagerten Nasszelle.
Bauherr
Sozialdienst katholischer Frauen Essen Mitte e.V.
Zeitraum der Leistungserbringung
2012
Leistungsphasen
Entwurfsplanung
LP 1–3


