
Wohnen an der Odenkirchener Straße
Beschreibung
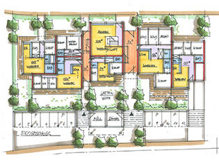
Ein bestehendes Gebäude des Autozentrums West wird in eine Wohnnutzung umgewandelt.
Dem Gebäude ist eine begrünte Carportanlage zur Minimierung der Verkehrsimmission vorgelagert. Die notwendigen Stellplätze der Wohneinheiten werden hier nachgewiesen, da die vorhandene Tiefgarage weiterhin vom Eigentümer als Autolager genutzt wird.
Der vorhandene Rohbau wird im Wesentlichen erhalten und durch Wohnungstrennwände und Zimmerwände ergänzt. Die große Raumhöhe des Erdgeschosses erlaubt tiefere Wohnungsgrundrisse als gewöhnlich, unter Beibehaltung der großflächigen Glasflächen an der Fassade.
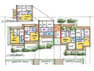
Im Obergeschoss wird die vorbereitete Aufstockung komplettiert und der gestalterischen Konzeption der Wohnungen im Erdgeschoss angeglichen. So entsteht ein harmonisches Gesamtensemble aus Wohnungen mit großflächigen Terrassen und begrünten Gartenhöfen.
Dieses Bauvorhaben ist entstanden in Kooperation mit dem Büro OttenArchitekten, Korschenbroich.
zum Vergrößern klicken



